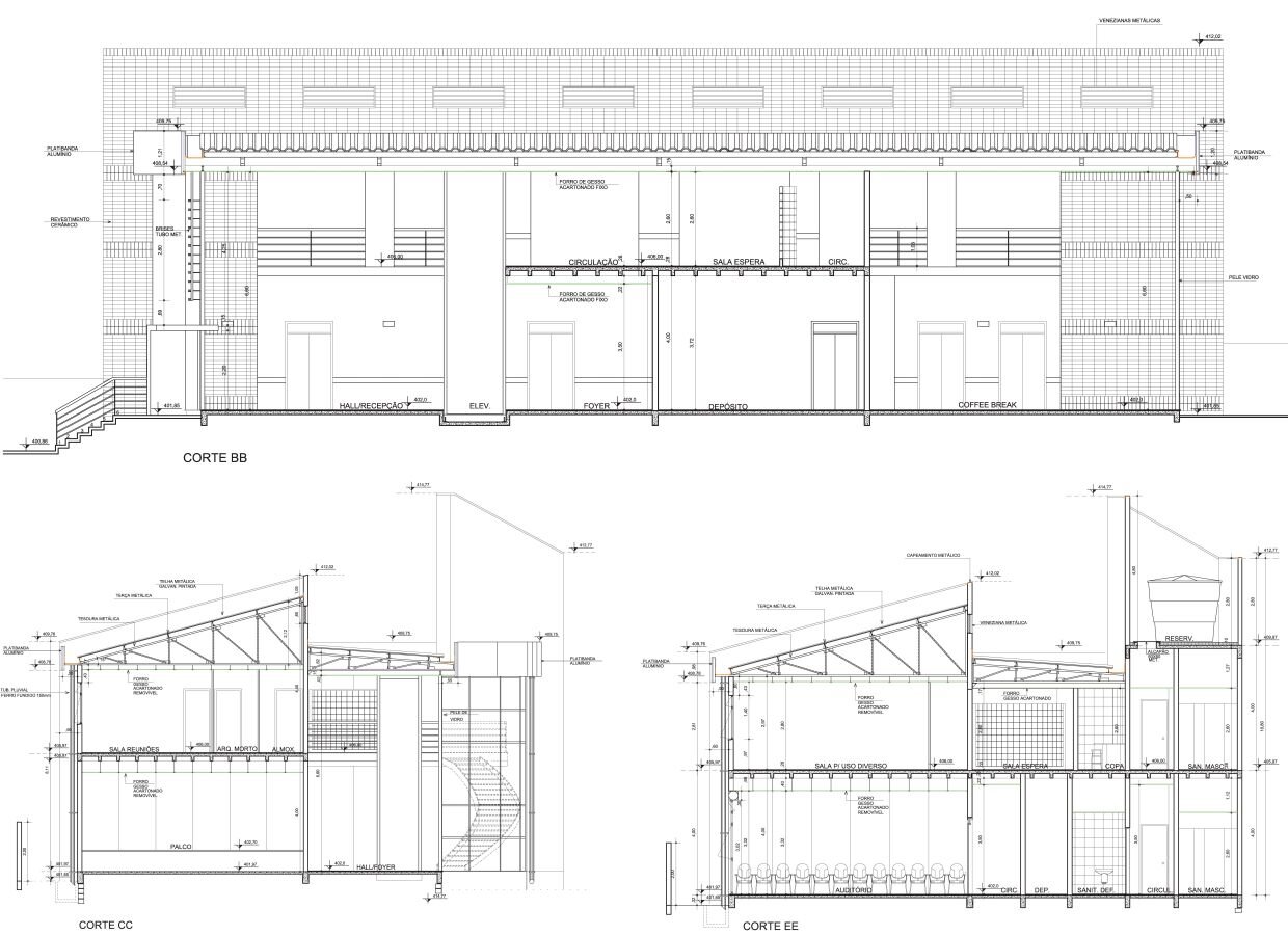
Sede da ACI Panambi - Projeto vencedor de concurso público

Arq. Oscar Escher, Arq. Daniela Barcelos, Cristiano Ferreira, Arq. Juliana Escher e Arq. Rita Ignácio
Av. Konrad Adenauer / Lote 21 e 24 – Quarteirão 88, Panambi RS
2003/2004
767,98m²
Associação Comercial e Industrial – ACI
Entre em contato conosco para discutir como podemos criar algo similar para você.
Solicitar Orçamento